89 Spit Road Mosman

Auction
3rd March 2026 at 6:00pm
O'Gorman & Partners Re Co Office, 130 Avenue Road, Mosman
3    2   
  • Auction

    Tuesday 3rd March

    6:00PM

Duplex/Semi-detached Auction

Captivating Family Home with Timeless Character with DA Approved Driveway and Carspace

Price Guide - Contact Agent
3    2   

Showcasing beautiful period details, this exceptional residence blends timeless charm with contemporary family comfort and creative design. Generously scaled and north facing, the semi is filled with natural light across both levels, each offering its own inviting living space. A striking staircase creates a memorable focal point, leading to a private parent's retreat complete with a king-sized bedroom, study nook and its own relaxed lounge.

The expansive ground floor footprint has been thoughtfully designed, with bedrooms positioned at the front and a superb open-plan family zone at the rear. Polished concrete floors and exposed timber beams add warmth and character, while the stunning island kitchen forms the heart of the home. Glass doors open seamlessly to the alfresco area and garden, creating an ideal setting for entertaining and everyday family living.

Rich in personality and lovingly maintained, this is a home of rare individuality and appeal. Perfectly positioned within sought-after school catchments, it is moments from Mosman Village, marina cafés, Balmoral Beach and the natural beauty of Chinaman's Beach.

Features:

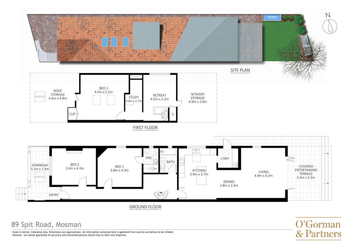
DA approved driveway and carspace Hallway & front bedrooms preserve beautiful period features Character flooring in a blend of polished concrete & timber Quality built-in wardrobes, bedroom two also provides an ensuite Custom kitchen with large island, Bosch induction cooking Garden retreat with pergola, fish pond with green wall, tool shed Abundant roof space offering storage as well as a workshop nook Internal laundry, reverse-cycle air con, dimmable lighting Just 120m to express city, Chatswood & Manly buses Beauty Point Public School and Mosman High School catchment


  • North Facing
  • Internal Laundry
  • Close to Transport
  • Close to Shops
  • Close to Schools
  • Bath
  • Shed
  • Floorboards
  • Built In Wardrobes
  • Air Conditioning

Inspection
Please contact Anthony O'Gorman to arrange an appointment.
Auction

Agents

Contact Agents

×
< >
×
< >
×
×
Property Enquiry
Mosman's Premier
Boutique Agency